Marché de la Forêt

Faire du quartier du marché le cœur dynamique de la ville.

Le Marché de la Forêt, un point de centralité

Ce lieu commercial est l’un des points les plus stratégiques de la ville comme l’a démontré l’étude sur les commerces menée par Cœur d’Essonne Agglomération en partenariat avec la Municipalité. Situé entre deux polarités fortes qui sont la Place de la Gribelette et le Château mais également à proximité de La Poste, il est le lien pertinent entre différents quartiers. Très plébiscité, essentiellement le samedi lors de son ouverture au public, il représente la proximité entre les commerçants et les visiteurs.

Pour autant, d’une part, le quartier n’a pas été conçu comme devant lui faire une place centrale et d’autre part, la vétusté de ses équipements (près de 40 ans) et son surdimensionnement, fragilisent son existence. Pour pouvoir construire un nouveau marché conforme aux normes en vigueur, renforcer l’attractivité du quartier, revégétaliser des espaces essentiellement dédiés à la route et repenser les nouveaux usages, il est primordial que le projet urbain du quartier tout entier soit repensé pour offrir aux habitants un lieu de vie plus convivial et sécurisant.

Pour cela, la Municipalité entend renforcer les atouts du marché en le dynamisant et en répondant aux attentes des habitants.

Ce projet ambitieux préfigure le « Morsang de demain », avec de nouveaux aménagements et des installations inédites. À terme, la Ville espère offrir aux Morsaintoises et Morsaintois une nouvelle halle de Marché avec une offre de commerçants plus conséquente, des espaces publics de qualité, la création d’un parvis végétalisé, des stationnements plus accessibles et plus importants, et bien évidemment, des logements plus adaptés qui répondent aux attentes des Morsaintois comme, par exemple, une résidence Seniors qui permettra aux Morsaintois, qui ne peuvent plus vivre chez eux mais qui sont encore suffisamment autonomes, de pouvoir occuper un appartement en toute sécurité.

Modification simplifiée du Plan Local d'Urbanisme

Ce projet repose notamment sur une modification simplifiée du Plan Local de l’Urbanisme (PLU), précédée par des efforts de maîtrise foncière en 2021 grâce à l’intervention de l’Etablissement Public Foncier d’Île de France, la démarche visait alors à lever certaines contraintes du PLU pour repenser l’organisation du site, les constructions autorisées et leurs intégrations paysagères.

Une grande consultation citoyenne

Au-delà de toutes les contraintes et caractéristiques historiques, humaines, urbaines, architecturales et environnementales qui ont été répertoriées, analysées et respectées, la Ville a souhaité associer les Morsaintois à cette réflexion. Elle a pour cela fait appel à l’association d’intérêt général Empreintes Citoyennes pour animer une vaste consultation citoyenne, fin 2023.

L’objectif ? Mieux cerner les usages, les attentes et les besoins des différents acteurs (habitants, associations, commerçants…) pour déterminer les orientations d’un projet urbain cohérent, qui affirmera la centralité du marché de la Forêt et participera à créer un véritable centre bourg.

Après plusieurs semaines de consultation, les bureaux d’études ont pu travailler sur des propositions, en s’appuyant sur les attentes et besoins exprimés par les Morsaintois. Les premières lignes du réaménagement du quartier du Marché de la Forêt commencent ainsi à se dessiner.

Novembre 2025 : le projet présenté aux Morsaintois

Projet marché de la Forêt - situation cadastrale (plan)
Projet marché de la Forêt - situation cadastrale
Projet marché de la Forêt - situation (vue aérienne)
Projet marché de la Forêt - situation
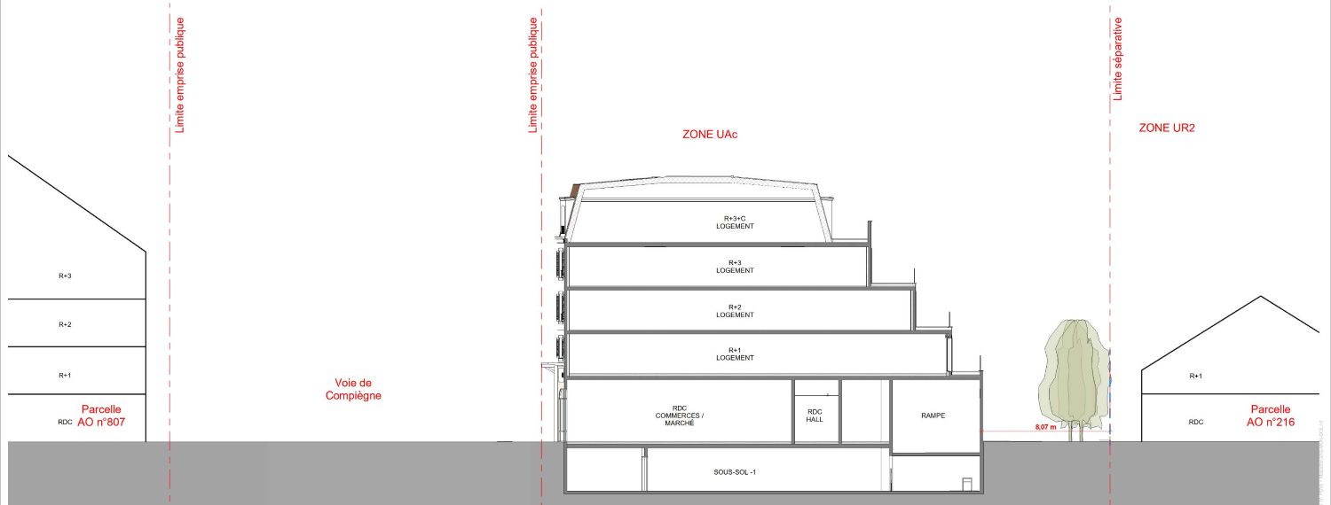
Projet marché de la Forêt - coupe gabarit de principe (plan)
Projet marché de la Forêt - coupe gabarit de principe
Projet marché de la Forêt - vue depuis la Voie de Compiègne
Projet marché de la Forêt - vue depuis la Voie de Compiègne
Projet marché de la Forêt - vue depuis l'angle de la rue Cure d'Air
Projet marché de la Forêt - vue depuis l'angle de la rue Cure d'Air
Projet marché de la Forêt - vue depuis l'angle de la rue Nos Efforts
Projet marché de la Forêt - vue depuis l'angle de la rue Nos Efforts

Le 19 novembre, le projet d’aménagement du futur marché couvert de Morsang-sur-Orge a été présenté aux Morsaintois en présence de Kaufman & Broad, maître d’ouvrage, et de l’agence d’architecture A26. Cette réunion a permis de partager les dernières évolutions d’un projet largement façonné par la concertation citoyenne menée ces dernières années.

Au cœur du dispositif, le nouveau marché couvert constitue la véritable centralité du quartier. La future halle, d’environ 1 500 m², offrira un espace moderne, fonctionnel et lumineux, pensé pour accueillir une trentaine de commerçants dans les meilleures conditions. L’entrée principale sera alignée sur l’axe de la rue centrale, tandis qu’une nouvelle voie arrière facilitera les livraisons sans perturber la circulation sur la voie de Compiègne. Deux ou trois cellules commerciales complèteront l’ensemble en rez-de-chaussée.

La municipalité a confirmé un choix fort : le parking public actuel est conservé. Désartificialisé, il gagnera en perméabilité et en qualité paysagère. Une zone bleue y est envisagée afin de favoriser la rotation au bénéfice des riverains et des commerces. Les espaces boisés existants, intégrés au PLU comme zones protégées, seront préservés et complétés par de nouvelles plantations.

Le projet comprend également 63 logements sociaux implantés au-dessus des commerces, dessinés dans un esprit « villageois » : loggias, grandes baies, matériaux soignés. Un seul niveau de sous-sol – contrainte liée à la nappe phréatique – permettra de créer environ 75 places de stationnement, accessibles par la rue Cure d’Air.

Un projet urbain partenarial conclu avec le promoteur prévoit en outre sa participation à la requalification des voiries et l’extension de l’école Cachin.

Le chantier démarrera en décembre 2025. Les travaux se dérouleront sans emprise sur la voirie et toutes les précautions seront prises pour limiter les éventuelles nuisances. Après une phase de désamiantage et de démolition, les travaux de terrassement commenceront au printemps. La grue sera montée en juin 2026, le gros œuvre durera près d’un an. La livraison est prévue au second trimestre 2028.

Pendant toute la période, le marché actuel restera en fonctionnement. Il sera par la suite démoli pour laisser la place à une résidence seniors en accession.

Ce projet ambitieux marque une nouvelle étape pour le quartier du Marché de la Forêt : un lieu plus attractif, plus vert, plus convivial, pensé avec et pour les Morsaintois.

Avril 2023

Etude de faisabilité

Juin 2023

Présentation du projet en mairie

Octobre à décembre 2023

Concertation et ateliers participatifs

2024

Elaboration du projet

Avril 2025

Dépôt du permis de construire

Novembre 2025

Présentation du projet aux Morsaintois

Décembre 2025

Démarrage du chantier

Décembre 2025 à février 2026

Démolition

Avril à juillet 2026

Terrassement et fondations

Juin 2026 à mars 2027

Gros oeuvre

Juin 2027 à avril 2028

Travaux intérieurs

Août 2027 à mars 2028

Façades et travaux extérieurs

Juin 2028

Livraison